MONUMENTO 1.2 CZ pro ArCon
Popis programu
Monumento pro ArCon nabízí originální možnosti prezentace a zpracování objednávky pro zákazníka, od nápisu až po vizualizaci hrobu s okolní zahradní úpravou. Veškeré změny a výměny - tvar náhrobku, materiál, nápisy a doplňky provádíte v reálném čase při jednání se zákazníkem. Výsledný 3D návrh zákazníkovi prezentujete formou vizualizace, nákresů a dokonce interaktivního 3D modelu.
![]() Písmo ve 3D |
![]() Volná tvorba desek |
![]() Katalog volně tvořených desek |
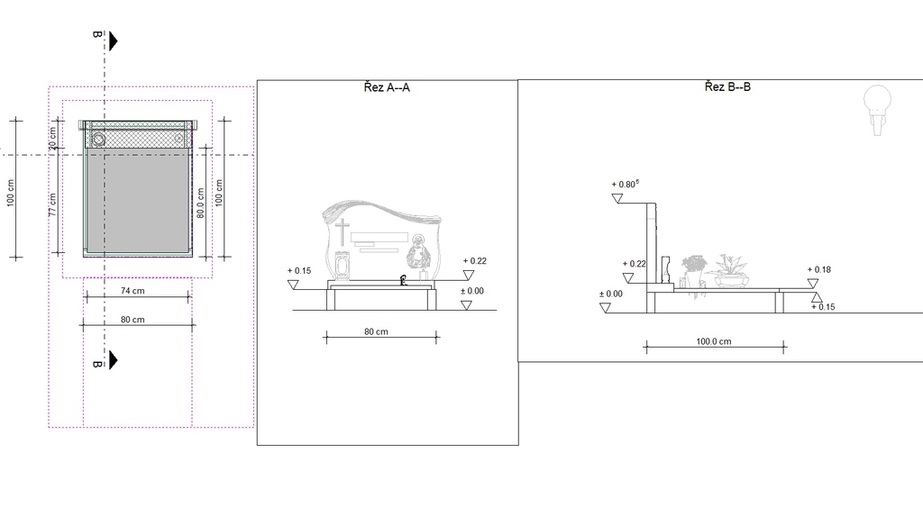
![]() Výstup pro realizaci |
ArCon a Monumento umožňuje ve 3D:
- vytváření libovolných kamenných desek
- modelování vlastní konstrukce pomníku
- barevnou simulaci kamene a povrchů
- použít katalogu ornamentů a motivů
- použít katalog doplňků
- použít katalog náhrobků Metal Granit a Hausdorf
- nanést písmo na náhrobek
- modelovat okolní terén
- zakomponovat návrh pomníku do fotografie




































